イベント
家族の“ちょうどいい”が全部ある建売住宅|12/6(土)~21(日) 完成見学会
JR庭瀬駅まで徒歩6分。
便利さも暮らしやすさも“ちょうどいい”建売住宅が完成しました。

[ 開催日時 ]
12月6日(土)~12月21日(日)
9:00 / 10:30 / 13:00 / 14:30 / 16:00
JR庭瀬駅まで徒歩6分の駅チカで、毎日がもっと便利に。
家事がラクになる動線、家族が自然と集まるリビング、
ロフト収納や2つのWICなど、ゆとりを生むたっぷりの収納。
毎日の暮らしが心地よく整う“ちょうどいい”建売住宅が完成しました。
■ 物件概要

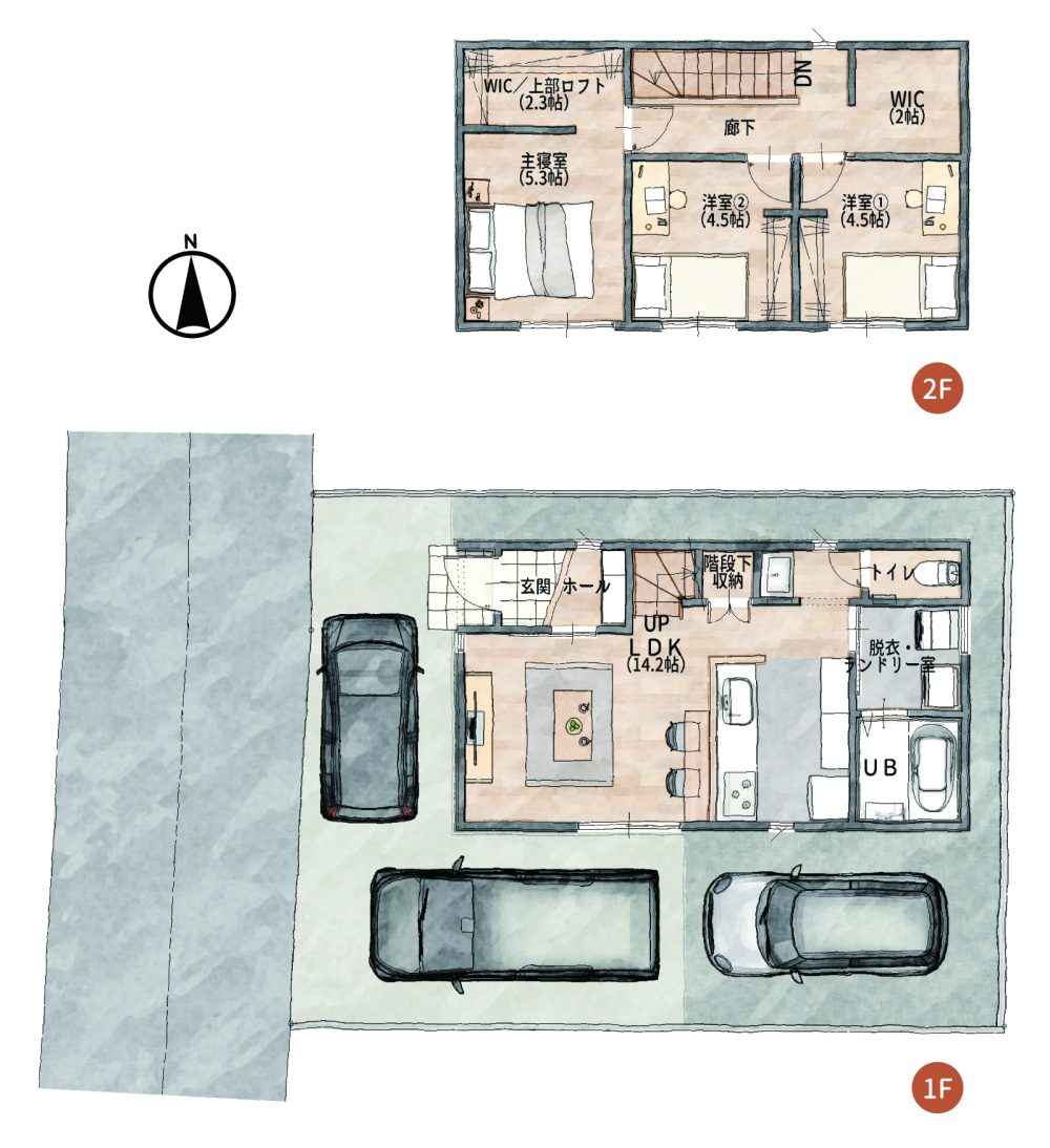
● 間取り
3LDK + 2WIC + ロフト
● 土地面積
101.65㎡ ( 30.74坪 )
● 建物面積
73.70㎡ ( 22.29坪 )
● 駐車3台可能◎
■ 間取り図

■ アクセス・マップ
所在地:岡山市北区庭瀬851-3
・JR庭瀬駅まで徒歩6分
・スーパー、ドラッグストアも徒歩圏内
利便性が高く、落ち着いた暮らしができる住みやすい立地です。
■ おすすめPOINT
1. コンパクトだから暮らしやすい家事ラク動線


・家事動線が短いから時短に!
・シンプルな間取りだからお掃除もラク!
・ガス衣類乾燥機「乾太くん」で洗濯が一気にラク!
・独立洗面台で朝の支度も快適!
2. 3LDK+2つのWIC+ロフト収納の“ちょうどいい”収納計画


・寝室側と廊下側で使い分けできる2つのWIC◎
・季節物の収納に便利なロフトへ!
・コンパクトでも収納量にゆとりのある間取り!
3. 子育て世代に嬉しい、快適&便利な充実設備



・食器洗い乾燥機
・浴室暖房乾燥機
・玄関電気錠
・宅配ボックス付きポスト
・エアコン(LDK・主寝室)
・全室照明+カーテン
・駐車3台可能の外構付き
4. 見えない部分も安心できる性能

・耐震等級3相当+制振ダンパー
・断熱等級5&一次エネ等級6
・一年を通して快適、光熱費も抑えやすい住まい
■ 写真では伝わらない心地よさを、ぜひ現地で。
コンパクトな家の動きやすさや、空間の広がりは
実際に歩いてみると「なるほど」と実感できます。
スタッフが丁寧にご案内しますので、初めての方もお気軽にお越しください。
ゆっくりご覧いただけるよう、予約制となっております。
下記フォームよりご希望日時をお選びください。